venta

maipu

$85.000ARS

Editar el contenido

Se debe presionar en actualizar para que los cambios sean implementados.

venta

maipu

$85.000US

maipu

$85.000US

Casas en B Vista Michello- Maipu Mza Lote D17
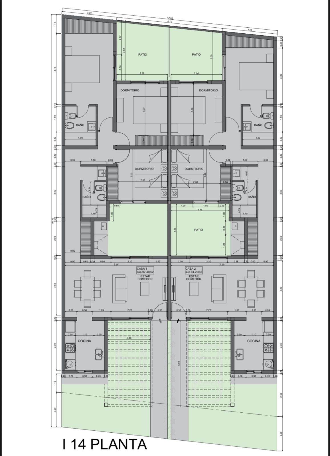
Casas en Barrio Vista Michello – Maipú, Mendoza Lote D17 ✨ Entrega: Octubre 2026 📌 Características principales • Conjunto de dos casas espejadas en lote de 300 m². • Cada unidad cuenta con: • 95 m² cubiertos • 150 m² de terreno propio • 3 habitaciones (1 en suite) • 2 baños completos • Cocina • Living comedor • Cochera • Dos patios ⚡ Instalaciones • Inmueble 100% eléctrico. • Construcción moderna y funcional. • Espacios amplios y luminosos. 🌳 Entorno • Ubicadas en el tranquilo y moderno Barrio Vista Michello, Maipú. • Zona de constante crecimiento, ideal para vivir o invertir. • No abona expensas por el momento. 👉 Oportunidad única de inversión en un barrio en expansión, con gran proyección de valor. Valor: USD 85.000 cada una 📲 Consultanos para más información o para agendar una visita al terreno.

Double click to add Marker. Tap and hold to add Marker. Drag Marker to move.

  • Añadir nueva opción

Características

Habitaciones: 3
Cantidad de baños: 2
Cantidad de patios: 2

Servicios

  • Luz
  • Agua
  • Municipalidad

Ubicación

Casas en B Vista Michello- Maipu Mza Lote D17

Contacto

¿Te interesa esta propiedad? Podés consultar por WhatsApp o por teléfono en nuestras oficinas.
+54 9 261 679 0317
Formulario de propiedad
2023. Todos los derechos reservados